


| 硬件配置 | |
| 電視功能 | 有線電視收看播放功能 USB多媒體文件播放功能 |
| 觸摸功能 | 支持20點電腦觸摸操作 支持各信號源切換后,觸摸功能可用 支持各信號源顯示狀態下,通過觸摸控制信號源、音量等菜單控制 |
| 其他功能 | 支持前置按鍵一鍵開關電腦、電視 前置HDMI、USB2.0、USB3.0、Touch接口,便于用戶使用 |
| 主板輸入/輸出接口 | |
| USB輸入 | 2路(Type-A型USB2.0 [含前置1路],USB3.0 x1路前置) |
| USB輸出 | 1路(Type-B型For HDMI Touch Out) |
| 音頻輸入 | 1路PC-VGA音頻 |
| 音頻輸出 |
|
| TV輸入 | 1路(75Ω IEC標準F型) |
| 視頻輸入 |
|
| 顯示性能參數 | |
| 產品型號 | 55-02 |
| 背光類型 | DLED |
| 背光燈壽命 | 50000小時 |
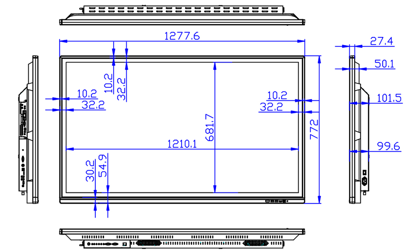
| 顯示尺寸(mm) | 1210x681 |
| 物理分辨率 | 2K(1920*1080) |
| 整機峰值亮度 | 250cd/㎡-20 |
| 動態對比度 | 5000:1 |
| 觀看視角 | H/V:178/178度 |
| 屏幕比例 | 16:9 |
| 顯示色彩 | 10Bit, 16.7M |
| 刷新率 | 60HZ |
| 顯示屏防護 | 4mm全鋼化高防爆玻璃 |
| 觸摸參數 | |
| 觸摸嵌入方式 | 內置一體式,非外掛式 |
| 觸摸感應技術 | 紅外感應識別觸摸技術(20點) |
| 書寫方式 | 手指、觸摸筆或其它直徑不小于5mm非透明物體(多點8mm) |
| 光標速度 | 120點/s |
| 定位精度 | 90%以上觸摸區域為±2mm |
| 觸摸分辨率 | 32767*32767 |
| 觸摸次數 | 理論無限次 |
| 計算機響應 | 系統自動識別;≤15ms |
| 驅動程序 | 免驅 |
| 整機電氣性能 | |
| 電源輸入 | AC 180-240V 50/60Hz |
| 整機不含電腦功耗 | 120W |
| 揚聲器功率 | 立體聲混合雙聲道CLASS-D功放輸出,額定功率:2x10W (L+R / 8Ω)of THD+N≤10%@1KHz(Audio Input:0.5VRMS) |
| 結構尺寸(單位:mm) | ||
| 產品型號 | SJ55DB | |
| 整機外形尺寸 (長×高×厚) |
L1277.6xH772xW101.5 | |
| 外箱包裝尺寸 (長×高×厚) |
L1395xH910xW190 | |
| 裸機凈重(KG) | 27 | |
| 整機毛重(KG) | 38 | |
| 壁掛架尺寸 | L640xH430xT30 | |
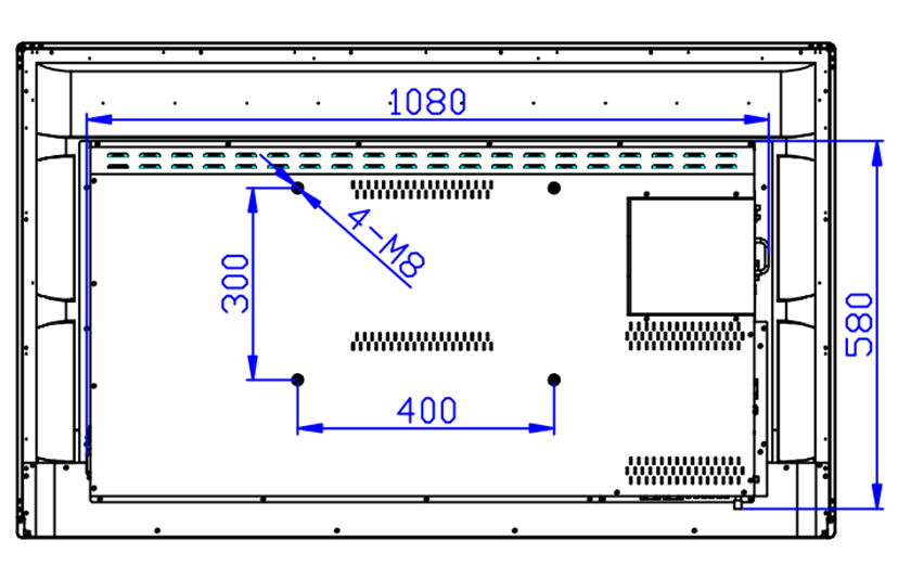
| 壁掛孔位尺寸 | 水平400 x垂直300 | |
| 壁掛螺絲規格 | M8xL25x4 pcs | |
| 包裝清單 | ||
| 55寸交互式智能平板 | 1臺 | |
| 遙控器 | 1個 | |
| 觸摸筆 | 1支 | |
| 說明書 | 1本 | |
| 電源線 | 1條 | |
![]() |
|
|
![]() |